
Metreya Hêza Axial a Smart Formwork (VW) bi berfirehî ji bo pîvandina zextê di strukturên piştevaniya formê de di endezyariyê de, wekî pir, avahî, rêhesin, veguheztin, hîdroenerjî, û bendavan tê bikar anîn.
|
Cihê Origin: |
Changsha, Çîn |
|
Navê marka: |
Kingmach |
|
Hejmara Model: |
(VW)JMZX-39XXHAT |
|
Şehadet: |
GB / T 13606-2007 |
|
Siparîşa hindiktirîn mîqdara: |
1 Parçe |
|
Biha: |
Negotiable |
|
Details Packaging: |
Karton an jî dozên darîn. Çareseriyên pakkirinê yên xwerû jî hene. |
|
Time Delivery: |
Piştî wergirtina dravê tevahî di nav 30 rojan de têne şandin. |
|
Mercên Tezmînatê: |
T / T li pêş. |
1. Têla vibrasyonê ya hilberê ji têla pola-hêza bilind a taybetî hatî çêkirin û bi karanîna teknolojiya welding lengerê ya standardkirî ya navneteweyî tête çêkirin, bi jiyanek karûbarê sêwirandî ya 50 salan re îstîqrara bilind, performansa bilind û rast peyda dike.
2. Sêwirana avahîsaziyê û materyalên avhewa performansa bêhempa ya avê garantî dikin.
3. Sensorek germahiya nîvconduktorê ya bicîbûyî tezmînata germahiyê ya otomatîkî dike.
4. Sensora zextê çîpek biaqil ji bo pêvajokirina sînyala dîjîtal yek dike, veguheztina sînyala bêtevlihevî li ser dûr û dirêj û kapasîteya dijî-destwerdanê ya bihêz peyda dike.
5. Sensora zextê bi çîpek bîranîna aqilmend e ku di dema hilberînê de modela senzorê, jimareya rêzik û kalibrasyonê bi domdarî hilîne. Ew bixweber heya 600 pîvanên pîvandinê, di nav de dema wergirtinê, germahiya xala çavdêrîkirinê, nirxên zextê, pîvanên xala sifir, û nirxên tezmînata germahiyê jî hildibijêre. Ev fonksiyona bêhempa ji hilberên me re taybetî ye (Nimreya Patenta Dahênanê: 01131544.X; Patenta Modela Karûbar a Structural: 01257348.5).
6. Dema ku bi amûra pargîdaniya me re were hev kirin, ew pîvana zexta rasterast di heman demê de frekansa têl a vibrasyonê nîşan dide.
7. Li ser bingeha pîvanên kalibrasyona senzorê û nirxa xala sifir, ew rasterast zexta navînî ya ku li senzorê tê sepandin nîşan dide, bi leza pîvandinê ya 1 xwendinê di saniyeyê de, xebata xwerû, hêsan û bilez peyda dike.
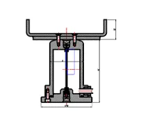
JMZX-39XXHAT Formwork Axial Force Gauge (VW &Cîpa Zêrîn) ji bo pîvandina zextê di strukturên piştevaniya formê de li seranserê qadên endezyariyê yên wekî pir, avahî, rêyên hesinî, veguheztin, hîdroenerjî, û bendavan hatiye sêwirandin, ku rê dide çavdêriya berfireh a şert û mercên barkirinê yên li ser formên betonê di dema potansiyela betonê de.
|
Mal |
Formwork Axial Force Gauge (VW &Curpe Smart) |
|
Dirêjahî |
50/100kN |
|
Tamî |
0,5% FS |
|
Resolution |
0.01kN |
|
Dimensions |
Diameter 80mm × Bilindahî 100mm |
|
Germahiya xebitandinê |
-30℃~+80℃ |
|
Rating IP |
IP68 |




Heke hûn bi hilberên me re eleqedar dibin an jî dixwazin bibin hevkarê me.
Ji kerema xwe agahdariya pêwendiya xwe bihêlin, tîmê me dê di demek zû de bi we re têkilî daynin.
Poste: [email protected]
Têkilî Bi me re: +8613808434127
Navnîşan: No. 188 Tongzipo West Rd, Changsha, Hunan, Çîn